Fritidshus "Olavi 7,5x7,5"
Fritidshuset "Olavi 7,5x7,5" är ett ljusfyllt 1,5-planshus med väggar av 90 mm tjocka frästa träreglar. Huset har ett originellt utseende tack vare fönster med specialform. Bottenvåningen har ett stort öppet kök/vardagsrum och en toalett/badrum. Loftet har ett sovrum och ett allrum/en trapphall mot bottenvåningen.
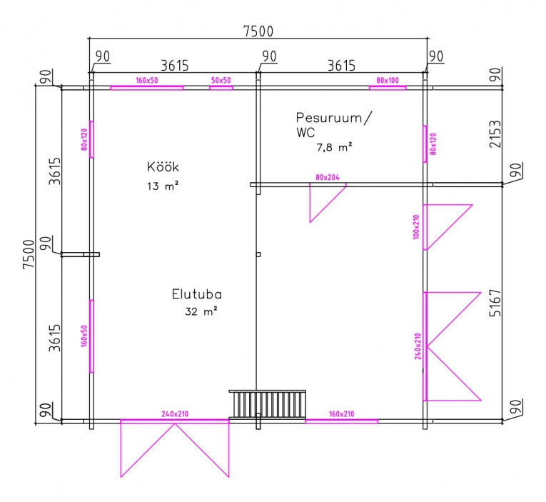
| Seina paksus (mm) | 90 |
| Grabaritmõõdud (pikkus x laius) | 7500 x 7500 |
| Ehitusalune pind (m2) | 56,25 |
| Kasulik pind (m2) | 52,8 + 26 |
| Kasulik pind II korrusel | 26 |
Sul on küsimusi
või soovid pakkumist?




